HOSPITALITY
A 15th Century Villa Turned Hotel
“Villa M” reimagines a historic Veneto estate as a boutique hotel and agritourism destination outside of Venice. This adaptive reuse architecture project explores hospitality as both an architectural and cultural experience by integrating historically sensitive adaptive reuse, landscaping, and cultural programming with hotel design best practices.
A conceptual design in collaboration with Andrea Guevara Vergani (Summer 2025).
LOCATION
Veneto, Italy
SIZE
32,749 sq ft (across 4 buildings on 17 acres)
Goals
- Preserve the villa residence’s historic character while adapting surrounding farm buildings for new uses.
- Create distinct yet cohesive accommodations across guest rooms in the villa and main hotel.
- Express sprezzatura through interiors that balance refinement, restraint, and residential comfort.
- Strengthen the guest experience by integrating architecture, landscape, and transitional spaces.
Design Challenges
- Balance the preservation of historic details with adaptive reuse that supports hospitality functions.
- Interiors should feel timeless and authentic while accommodating modern amenities.
- Circulation and “in-between spaces” should encourage guest discovery and interaction with the land.
- Design spaces that both accommodate and enable agriturismo and cultural programming.
CONCEPT

Sprezzatura
Inspired by the Renaissance ideal of sprezzatura (effortless elegance), the design concept balances restraint and refinement. Historic textures (plaster, stone, wood) are paired with understated, sculptural furnishings. The project reflects a slow tourism design philosophy, using local materials and timeless details to root the architecture in place.
SITE STRATEGY
The master plan for this hospitality project organizes the villa and original farm buildings around a central plaza. This guest experience design connects the estate through architecture, landscape, and interactive spaces. As a result, guests are rewarded for exploring the site and interacting with the surrounding farmland.

- Villa suites
- Hotel
- Restaurant
- Teaching kitchen & retail spaces
- Spa and gym
- Formal garden
- Public plaza
ADAPTIVE REUSE
The design balances preservation with thoughtful transformation. We wanted to honor the villa’s historic character while adapting ancillary buildings for modern hospitality. The villa residence is carefully restored, creating 7 luxury suites. While the original granary building is more extensively altered to function as the main hotel and restaurant.


HOTEL SPACE PLANNING

ACCOMMODATIONS
Guest rooms at Villa M blend historic character with contemporary comfort, reflecting the estate’s approach of preservation and adaptive reuse. The guest room interiors vary by building. Furniture profiles, material palettes, and detailing are carefully tailored to reinforce each structure’s unique architectural identity.
Villa Experience
The restored villa offers one-bedroom luxury suites inspired by Renaissance-era apartments, with areas for sleeping, study, and entertaining. The interior architecture highlights original beams, arches, and plastered walls. Similarly, furnishing and finishes pay homage to historical finishes.
Suite Renderings
Suite Floor Plans

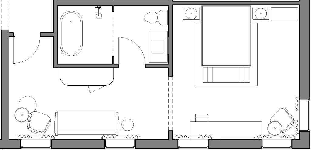
Hotel Experience
The hotel offers two-bedroom suites and mini-suites designed with rich textures and sculptural low-profile furnishings that translate the building’s industrial heritage into a refined boutique hotel design. Although unique to the hotel building, the overall aesthetic compliments the villa design details.
Suite Renderings
Suite Floor Plans










